Skip to main content

Öjersjö By

Vårt uppdrag

Vår roll; Deltagande i detaljplaneprocess, framtagande av programhandling, bygglov, förfrågningsunderlag samt bygghandlingar för totalentreprenör.

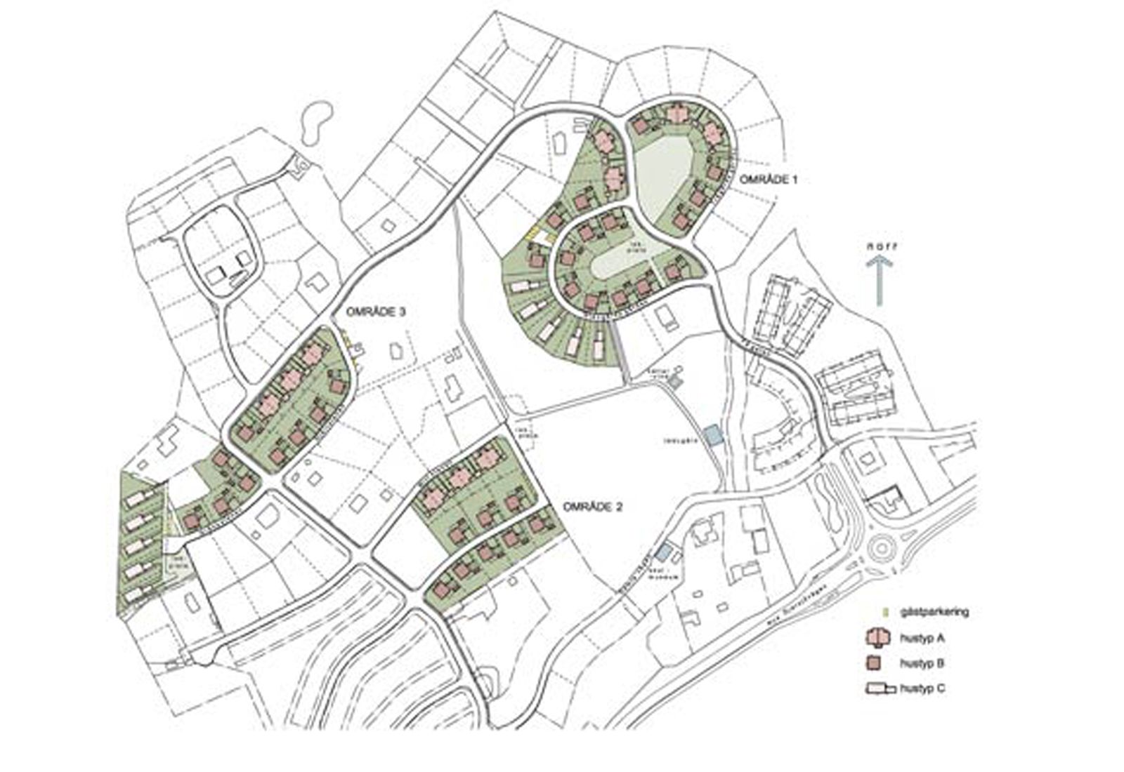
Området är planerat i anslutning till kvarvarande äldre jordbruksbebyggelse. Området är format utifrån kulturlandskapet och naturen, med bevarade träddungar och stengärdsgårdar, så att området redan från början skall upplevas som "färdigt".

Bebyggelsen består av 63 bostäder med äganderätt. Storleken är 4 rok - 6 rok 

Fakta

Nybyggnad av 63 bostäder med äganderätt, 2011 Partille Kommun

Beställare: NCC Boende, Göteborg / NCC Construction

Bruttoarea: 9 480 kvm