Skip to main content

Sjöfartsmuseet, etapp 2

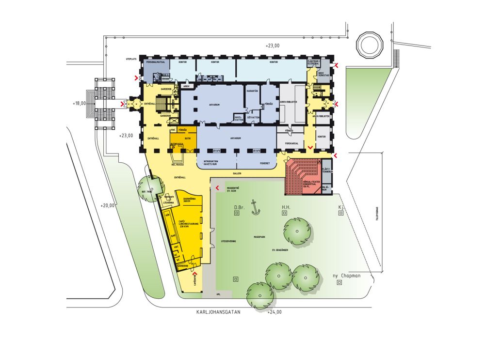
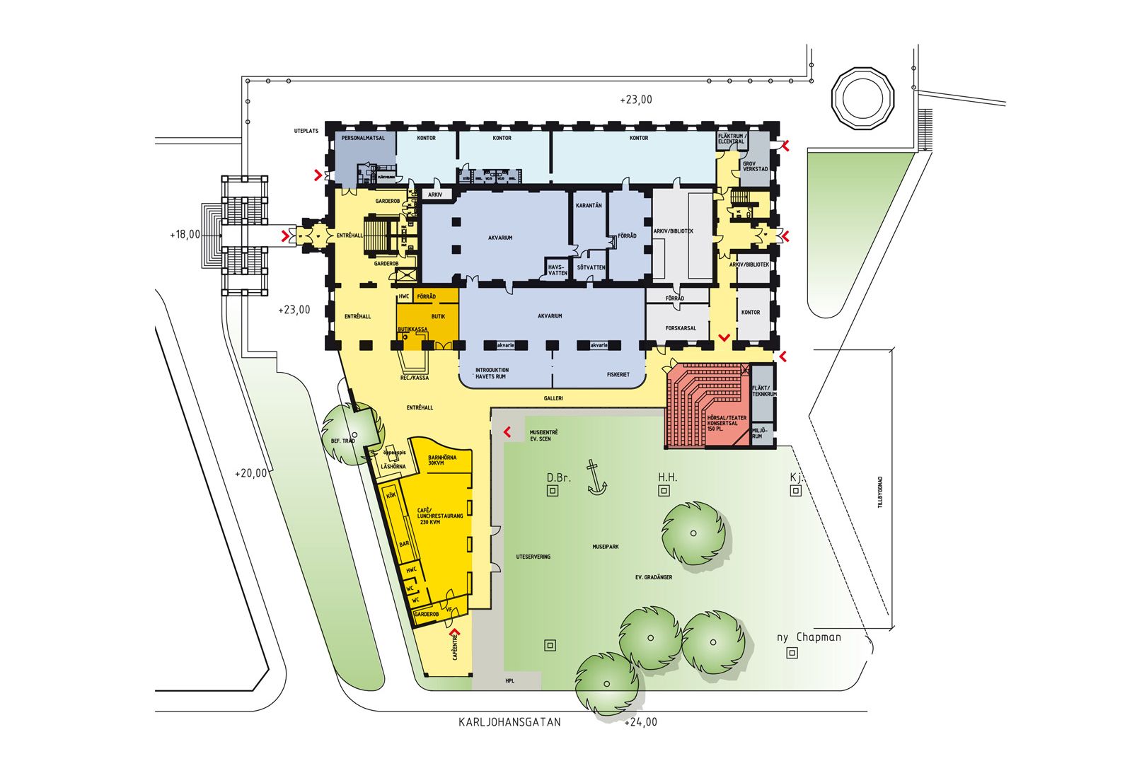
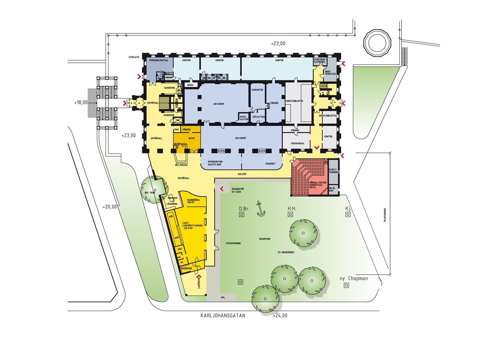
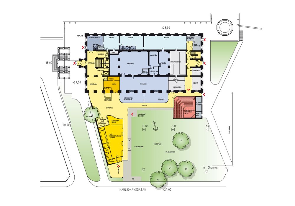
Vårt uppdrag

I uppdraget ligger även att förbättra logistiken mellan de olika verksamheterna i museet. Samtidigt skall tillbyggnaden erbjuda en trivsam restaurang med uteservering samt ny hörsal och utbyggnad av akvariet.

Syftet med projektet är att motverka den i stadsbilden befintliga felvända huvudentrén och istället skapa en ny
inbjudande huvudentré som därmed aktiverar museet mot Stigbergstorget och huvudstråket. Den nya huvudentrén
skall innehålla reception och museishop. 

Fakta

Göteborg, Pågående förstudie av om- och tillbyggnad av museum.

Beställare: Göteborgs Stad, Kulturförvaltningen

Bruttoarea: Tillbyggnad: 900 kvm, ombyggnad: 1 500 kvm