Skip to main content

Sätila Förskola

Vårt uppdrag

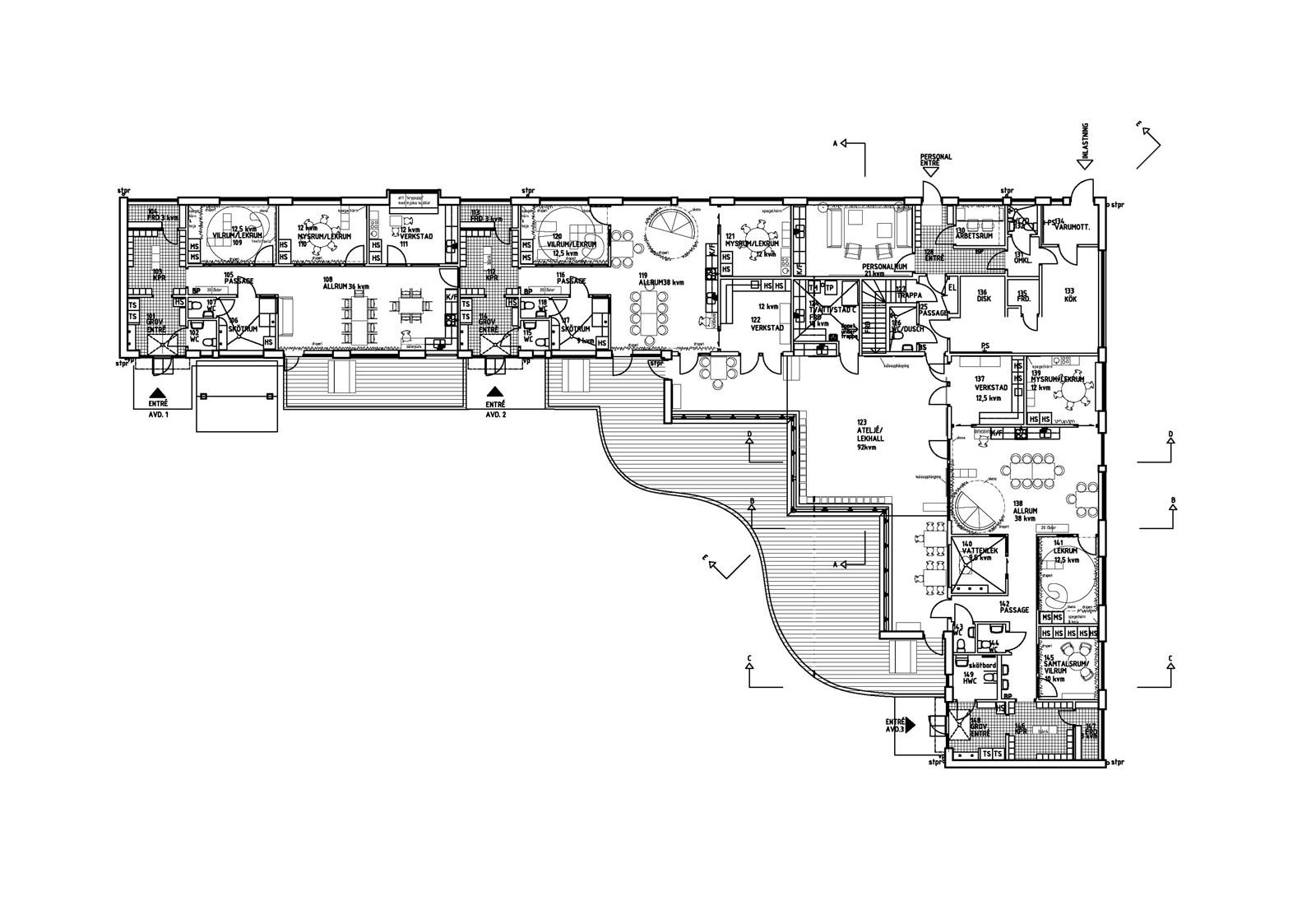
Nybyggnad av förskola med tre avdelningar, ateljé/lekhall och mottagningskök. Gestaltningen är utformad utifrån en tidig önskan i projektet att en stor del av energin till förskolan skulle genereras utifrån solpaneler på fasaden.

Nybyggnad av förskola med tre avdelningar, ateljé/lekhall och mottagningskök. Gestaltningen är utformad utifrån en tidig önskan i projektet att en stor del av energin till förskolan skulle genereras utifrån solpaneler på fasaden.

Fakta

Nybyggnad av Sätila Förskola Marks Kommun 2009.

Beställare: Marks Kommun

Bruttoarea: 600 kvm