Svartedalsskolan
Vårt uppdrag
Uppdraget har omfattat systemhandling, bygglovshandling, förfrågningsunderlag för totalentreprenad samt inredningsuppdrag för lös inredning och specialsnickerier.
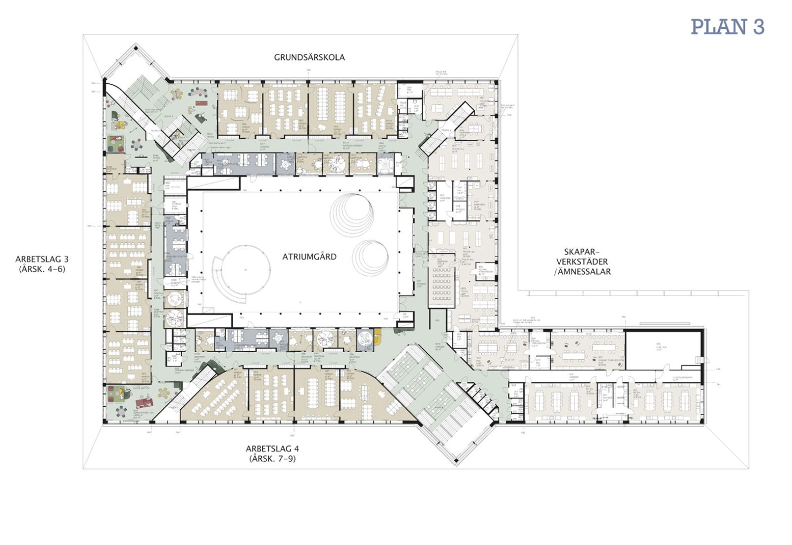
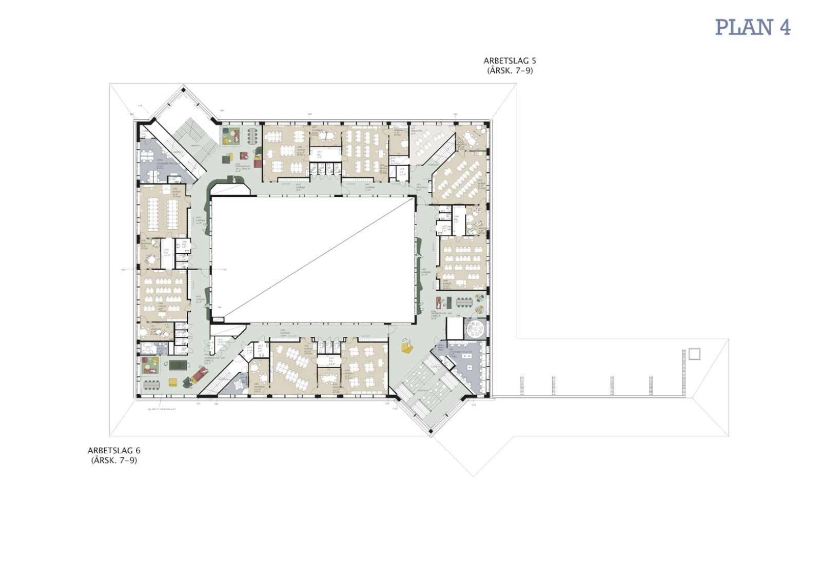
Nybyggnad av 4-9 skola för ca 750 elever samt särskola. Byggnaden omfattar förutom skollokaler även nytt bibliotek, matsal och storkök samt en idrottshall. Även en överglasad atriumgård har skapats som en bonusyta för utställningar, workshops, uppträdanden m.m.
Klicka här för att läsa mer om vårt inredningsuppdrag för Svartedalsskolan.
Läs mer om Svartedalsskolan i GP - "Nya Svartedalsskolan står klar till sommaren"
Artikel publicerad i GP 2019-12-25: www.gp.se/nya-svartedalsskolan
Fakta
Svartedalsskolan, Göteborg 2017-2020
Beställare: Göteborgs Stad Lokalförvaltningen
Bruttoarea: 12 500 kvm































