Svartedalsskolan
Vårt uppdrag
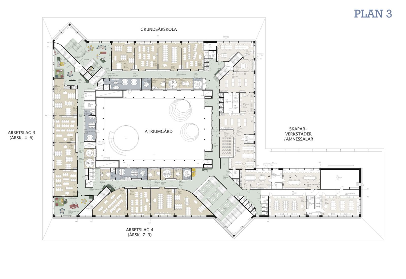
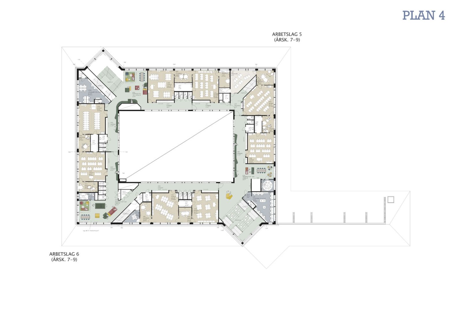
Inredning av nybyggd 4-9 skola. Fokus på att skapa miljöer som känns vänliga, inspirerande, trygga och flexibla. Mjuka former och material används, samt en varm, jordnära färgskala hämtad från omgivningarna.
För att läsa mer om Svartedalsskolan, klicka här!
Fakta
Inredning Svartedalsskolan, Göteborg 2019
Beställare: Göteborgs Stad Grundskoleförvaltningen
Bruttoarea: 12 500 kvm




















