Nolhaga Ishall
Vårt uppdrag
Vi har medverkat under programhandling, bygglov, förfrågningsunderlag samt bygghandling.
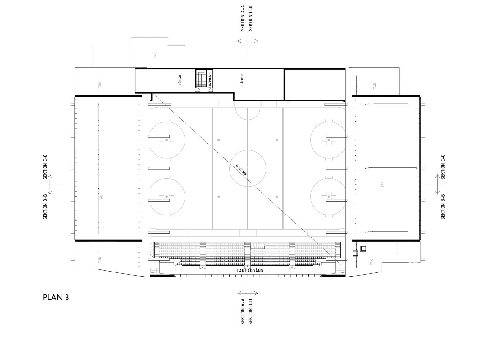
Nolhaga ishall i Alingsås är en byggnad med fokus på hållbarhet placerad i natursköna Nolhaga park. Under vidsträckta limträbågar har ishallen utformats som en förbundshall, med läktare för 500 åskådare. Nolhaga ishall bildar en naturlig mötesplats med fokus på gemenskap och aktivitet. En hall som skapar stora framtidsmöjligheter för Alingsås föreningsliv!
Projektering har skett tillsammans med Alingsåshem och Peab genom en samverkansentreprenad. Byggnationen påbörjas med första spadtag i maj 2023 och ishallen invigdes i början av 2025.
Önskemålet från vår beställare att bygga så mycket som möjligt fossilfritt och i trä har gett hela byggnaden dess starka arkitektoniska element. Arbetet började med att hitta en form som tillgodosåg både ishallens behov av fri takhöjd samt detaljplanens förutsättningar. Material för tak och fasader kändes utifrån platsen självklara att välja som naturliga och förnyelsebara. Fasaden är klädd i skiffer, och sedumtaket speglar omgivande parkens grönska och de glasade ytorna det blänkande vattendraget. Byggnadens bågform kan med dessa material uppfattas som en del av parken som aktivt samtalar med sin omgivning. Stora glaspartier följer byggnadens bågform och annonserar huvudentrén och de publika mingelytorna i två plan bakom ishallens läktare, med utblickar mot den vackra parken.
En förutsättning för planeringen av idrottsarenan har varit att skapa plats för flertalet olika idrottsföreningar - för både ishockey, dans och konståkning. Byggnaden innehåller förutom ishall även en större danssal samt ett gym och lokaler för föreningsverksamhet.


























